Nội Thất Tâm An là đơn vị thiết kế và thi công nội thất trọn gói theo tiêu chuẩn chuyên nghiệp, kiến tạo những không gian sống tinh tế, tiện nghi và bền vững theo thời gian. Chúng tôi tập trung tối ưu công năng, lựa chọn vật liệu chất lượng cao và đảm bảo sự đồng bộ trong từng chi tiết thi công, mang đến giá trị sử dụng lâu dài cho khách hàng.
Với đội ngũ kiến trúc sư và kỹ thuật viên giàu kinh nghiệm cùng quy trình triển khai bài bản, Nội Thất Tâm An đồng hành cùng khách hàng từ khâu tư vấn ý tưởng đến thi công hoàn thiện, đảm bảo chất lượng, tiến độ và tính thẩm mỹ cao trong mỗi công trình. 
Ngôi nhà mang phong cách hiện đại – tối giản sang trọng, với:
• Khối kiến trúc vuông vức, mạnh mẽ
• Ban công lớn trồng cây xanh tạo không gian nghỉ dưỡng
• Mảng tường đá tối màu kết hợp kính rộng → vừa sang trọng vừa thoáng sáng
• Cổng kín đáo nhưng đẳng cấp, đảm bảo riêng tư
👉 Tổng thể rất “villa phố” – đẹp, bền vững và cao cấp. 
Thể hiện rõ:
• Thiết kế lệch khối tạo chiều sâu kiến trúc
• Hệ lam chắn nắng thông minh bên hông nhà
• Ban công dài chạy suốt mặt tiền – tối ưu ánh sáng & gió trời
• Không gian xanh bố trí xen kẽ các tầng
👉 Vừa thẩm mỹ vừa chống nóng cực tốt cho nhà phố. 
Không gian thư giãn ngay trong nhà:
• Lối đi lát đá kết hợp cỏ xanh
• Cây nhiệt đới tạo cảm giác resort mini
• Đá trang trí làm điểm nhấn phong thủy
• Thiết kế mở lấy sáng tự nhiên
👉 Bước vào nhà là thấy mát mẻ – thư giãn liền. 
Điểm nhấn cực sang:
• Tường nước chảy nhẹ tạo âm thanh thư giãn
• Hồ cá Koi kết hợp đá tự nhiên
• Cây xanh bao quanh làm mát không khí
• Vật liệu tối màu tăng chiều sâu sang trọng
👉 Không gian kiểu resort cao cấp trong lòng phố. 
Thể hiện:
• Hành lang kính nhìn ra hồ cá
• Nước – cây – ánh sáng hòa quyện
• Không gian sống mở, rất chill
👉 Ở trong nhà nhưng cảm giác như nghỉ dưỡng. 
Cho thấy:
• Khu sân thượng rộng
• Không gian sinh hoạt ngoài trời
• Các phòng bố trí gọn gàng, khoa học
• Lấy sáng tự nhiên rất tốt
👉 Phù hợp làm sân vườn trên cao hoặc khu thư giãn. 
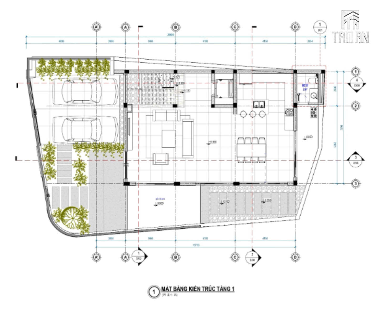
Bố trí gồm:
• Gara ô tô phía trước
• Phòng khách rộng liên thông bếp – ăn
• WC gọn gàng
• Sân vườn và lối thoáng
👉 Công năng tối ưu cho sinh hoạt gia đình hiện đại.
Thể hiện:
• Hình khối kiến trúc tổng thể
• Các mảng kính – lam – ban công
• Cao độ tầng rõ ràng
👉 Dễ thi công – chuẩn kỹ thuật – đẹp đúng thiết kế. 
Nhìn trực quan:
• Phòng khách – bếp liên thông rộng rãi
• Cầu thang bố trí hợp lý
• Ánh sáng tự nhiên tràn ngập
• Không gian mở rất thoáng
👉 Ở rất sướng – không bí như nhà phố truyền thống. 
Nhìn trực quan:
• Các phòng ngủ bố trí khoa học, rộng rãi
• Cầu thang trung tâm kết nối thuận tiện
• Hệ cửa kính lớn lấy sáng tự nhiên
• Hành lang – ban công thoáng mát
👉 Không gian riêng tư nhưng luôn sáng và mát – chuẩn nhà phố cao cấp. • Loại hình: Nhà ở, căn hộ, biệt thự, văn phòng, showroom
• Hạng mục: Thiết kế – thi công nội thất trọn gói
• Phạm vi: Khảo sát, thiết kế, sản xuất và thi công hoàn thiện
• Tiêu chuẩn: Thẩm mỹ cao, công năng tối ưu, vật liệu chất lượng
CAM KẾT
• Thiết kế tinh tế, phù hợp nhu cầu thực tế
• Thi công đúng tiêu chuẩn, đúng tiến độ
• Kiểm soát chất lượng chặt chẽ từng hạng mục
• Bảo hành rõ ràng, hỗ trợ lâu dài
📞 Hotline: 098.124.1199
📍 Văn phòng: N06C LK19 – Khu đô thị Vạn Phúc, Hà Đông, Hà Nội
